Lakás eladó

Dunakeszi, Barátság út
65.900.000 Ft
€ 170.791
3 szoba 3 szoba
71 nm 71 nm

Lakás eladó

Dunakeszi, Barátság út

Leírás

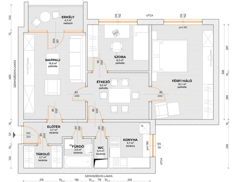
Dunakeszin kínálunk eladásra egy 71 m²-es, erkélyes, 2+1 félszobás, világos és jó elosztású lakást.

Az ingatlan normál állapotú, beköltözhető, de ugyanakkor igény szerint esztétikai, illetve kisebb korszerűsítési munkálatokkal tovább növelhető értéke és komfortja. A külön nyíló szobák laminált padlóval burkoltak, redőnnyel felszereltek, illetve a lakásban az erkély ajtót leszámítva teljeskörű nyílászáró csere történt.
A nappaliból egy 4 m²-es erkélyre léphetünk ki, ahonnan parkos, zöld környezetre nyílik kilátás, ami kellemes, nyugodt hangulatot biztosít.

A fűtést a dunakeszi hőközpont biztosítja, melynek köszönhetően, kellemes komfortérzetet nyújt a lakás, alacsony fenntartási költségek mellett.

Elhelyezkedése kiemelkedően jó: központi, mégis csendes, zöldövezeti környezetben található. A lokációnak köszönhetően minden fontos intézmény, bevásárlási lehetőség, iskola, óvoda, tömegközlekedés néhány percen belül elérhető, a Duna-parti sétány pedig rövid sétával megközelíthető.

Amennyiben a vásárláshoz meglévő ingatlana eladása vagy hitelügyintézés szükséges, irodánk teljes körű segítséget nyújt a gördülékeny és biztonságos ügyintézés érdekében. A hitel közvetítése díjmentes.
Amennyiben elnyerte tetszését, vagy bármilyen kérdése lenne, illetve megtekintési szándéka, keresse bizalommal irodánkat.

Összes mutatása

Tulajdonságok

Ref.:
60036
Állapot:
Normál
Emelet:
2
Lift:
Van
Fűtés:
Házközponti egyedi mérővel (Távfűtés)
Építőanyag:
Panel
Összes mutatása

Energetikai tanúsítvány

Ehhez az ingatlanhoz nem tartozik energetikai tanúsítvány
Építés éve:
1981

Vegye fel velünk a kapcsolatot

* Ez a mező kötelező
Franchisee
Casa Futura Kft.
2120 Dunakeszi Járás, Fő út, 119.
2120 Dunakeszi Járás, Fő út, 119. Dunakeszi
Hétfő-Péntek: 09:00-19:00,Szombat: 09:00-13:00

Munkatársaink


  • Attila Hodola
    Irodatulajdonos

  • Margita Gergő
    Képviselő

  • Dániel Szemes
    Képviselő

  • Palatinus Patrik
    Képviselő

  • Dániel Keresi
    Képviselő

  • Panna Zsuzsanna Pokorny
    Képviselő
Franchisee
Casa Futura Kft.
2120 Dunakeszi Járás, Fő út, 119.
Tecnocasa Group Logo

Minden ügynökségnek saját tulajdonosa van és önállóan működik.

árfolyam 31/03/2026
EUR 385.85 HUF

cégünk

Elérhetőségeink

2026 Gruppo T.F.M. Szolgáltató Zrt. - P. IVA 27421275-2-42 - 1068 Budapest, Király utca 102.. Minden ügynökségnek saját tulajdonosa van és önállóan működik.

Adatvédelmi irányelvek | Cookies tájékoztató