Ház eladó

Dunakeszi, Központ városrész
114.990.000 Ft
€ 294.853
5 szoba 5 szoba
197 nm 197 nm

Ház eladó

Dunakeszi, Központ városrész

Leírás

Eladásra kínálunk Dunakeszi városközponti részén, duplakomfortos, 197nm-es nagy terekkel rendelkező, világos közepes állapotú sorházat.

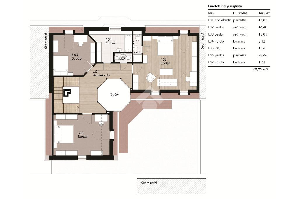
Az alsó szinten, amerikai konyhás nappali, fürdőszoba, előszoba és egy hálószoba van, míg a felső szinten, két hálószoba, közlekedő, 2 db fürdőszoba külön 2 db WC található, így összesen 3 hálószoba, 3 fürdőszoba, és 3 WC van. A nappaliból és az étkezőből közvetlen kapcsolta nyílik a 25 nm-es fedett teraszra.

A hálószobákban és a közlekedőkben hagyományos szalag parketta, a többi helyiségben hideg burkolat található.

A nyílászárók fa típusúak, fűtésről kombi cirkó gondoskodik, radiátoros hőleadással, puffer tartállyal szerelve.

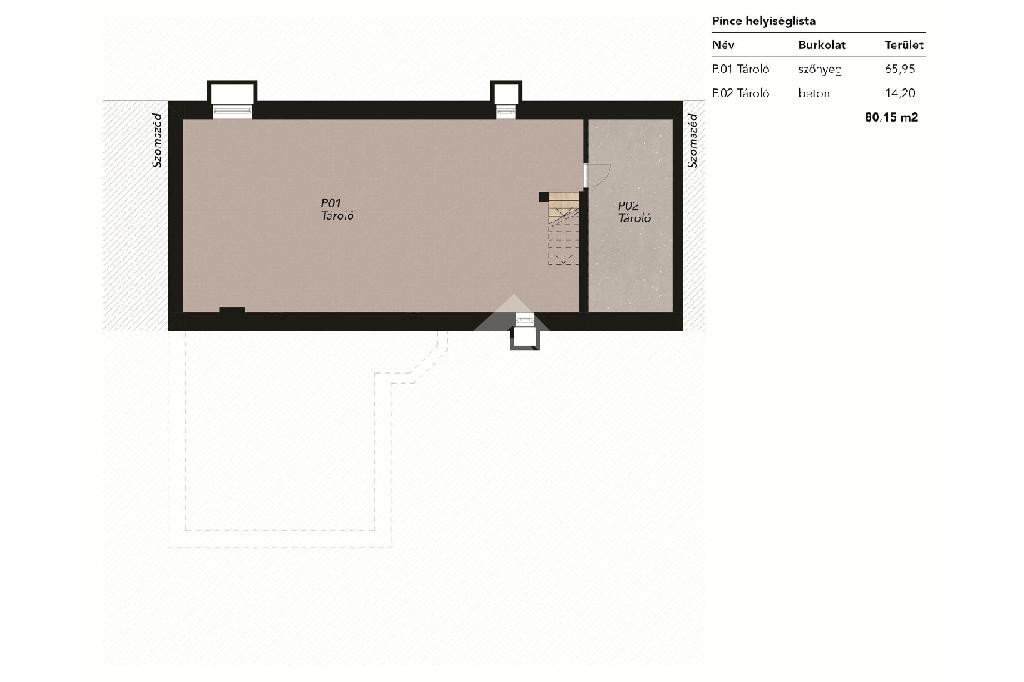
A ház alatt 80 nm nagyságú normál belmagasság rendelkező, jól pakolható, vagy műhelynek használható pince helyezkedik el.

A konyhabútor az ár részét képezi.

A kertbe a házon kereszt, vagy a garázson keresztül tudunk hátra jutni, a garázs mind két oldalán garázs kapu van, így autóval áthaladásra is biztosított.

A rendezett kert végében grillező található.

Kérdésével, illetve megtekintési szándékával kérem keresse irodánkat.

Az ingatlan hitelre is megvásárolható. Bankfüggetlen tanácsadóink, az ország összes pénzintézete közül gyorsan és gördülékenyen találja meg az Önnek legmegfelelőbb konstrukciót, egyedi kedvezményekkel. A hitel közvetítés díjmentes.

Összes mutatása

Tulajdonságok

Ref.:
59269
Állapot:
Közepes állapotú
Lift:
Nincs
Fűtés:
Gázcirkó (Gáz, Cirkó)
Egyéb helyiségek:
Terasz (25 nm)
Építőanyag:
Tégla
Összes mutatása

Energetikai tanúsítvány

Ennél az ingatlannál az energetikai tanúsítvány folyamatban van
Építés éve:
1993

Vegye fel velünk a kapcsolatot

* Ez a mező kötelező
Franchisee
Casa Futura Kft.
2120 Dunakeszi Járás, Fő út, 119.
2120 Dunakeszi Járás, Fő út, 119. Dunakeszi
Hétfő-Péntek: 09:00-19:00,Szombat: 09:00-13:00

Munkatársaink


  • Attila Hodola
    Irodatulajdonos

  • Margita Gergő
    Képviselő

  • Dániel Szemes
    Képviselő

  • Dániel Keresi
    Képviselő
Franchisee
Casa Futura Kft.
2120 Dunakeszi Járás, Fő út, 119.
Tecnocasa Group Logo

Minden ügynökségnek saját tulajdonosa van és önállóan működik.

árfolyam 18/12/2025
EUR 389.99 HUF

cégünk

Elérhetőségeink

2025 Gruppo T.F.M. Szolgáltató Zrt. - P. IVA 27421275-2-42 - 1068 Budapest, Király utca 102.. Minden ügynökségnek saját tulajdonosa van és önállóan működik.

Adatvédelmi irányelvek | Cookies tájékoztató